Living in the heart of Bangkok requires careful consideration of space planning and design to ensure comfort and quality of life. Athenee Residence offers a selection of thoughtfully designed floor plans that emphasize aesthetics, functionality, and privacy. The residences range from units ideal for individuals or couples to expansive penthouse-style homes for families. Each unit features generous living spaces, high-quality finishes, and impressive city views, providing a complete and well-balanced living experience of the highest standard.


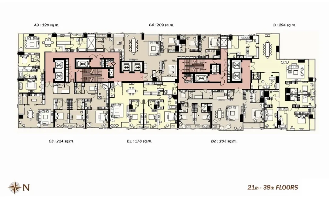
With a living space of 90–140 square meters, Type A is designed for modern city living. Ideal for singles or couples who appreciate understated elegance, this residence features a contemporary kitchen with premium appliances, ensuring convenience for every meal. The bright living area with expansive windows opens to panoramic city views that transform ordinary days into special moments. A well-planned bathroom and walk-in closet complete the space, offering a refined living experience in every detail.
Type B provides an ideal balance of space for modern families, offering 170–200 square meters designed for both relaxation and productivity. The living room seamlessly connects to a private balcony with skyline views, while the kitchen with a stylish island is perfect for cooking or private gatherings. Each bedroom comes with an en-suite bathroom and ample storage, combining practicality with sophisticated living.
With 180–230 square meters of space, Type C offers a luxurious yet private living environment. The expansive double-height living area is bathed in natural light, complemented by a European-style kitchen and separate preparation area, making it ideal for entertaining at home. The master bedroom features a spacious walk-in closet and a private spa-inspired bathroom, creating a retreat that feels like a resort in the heart of the city.
The epitome of luxury living, Type D spans over 290 square meters and defines the essence of penthouse living. Designed for ultimate comfort and exclusivity, it features both a main and secondary kitchen to accommodate daily life and entertaining. The high-ceiling living room with floor-to-ceiling windows reveals sweeping panoramic views of the city. The master bedroom includes a grand walk-in closet and an opulent bathroom with a custom-designed bathtub, offering the highest level of privacy and five-star comfort.